4604 Atlantic Blvd - 1b, Jacksonville, FL 32207
4604 Atlantic Blvd - 1b, Jacksonville, FL 32207
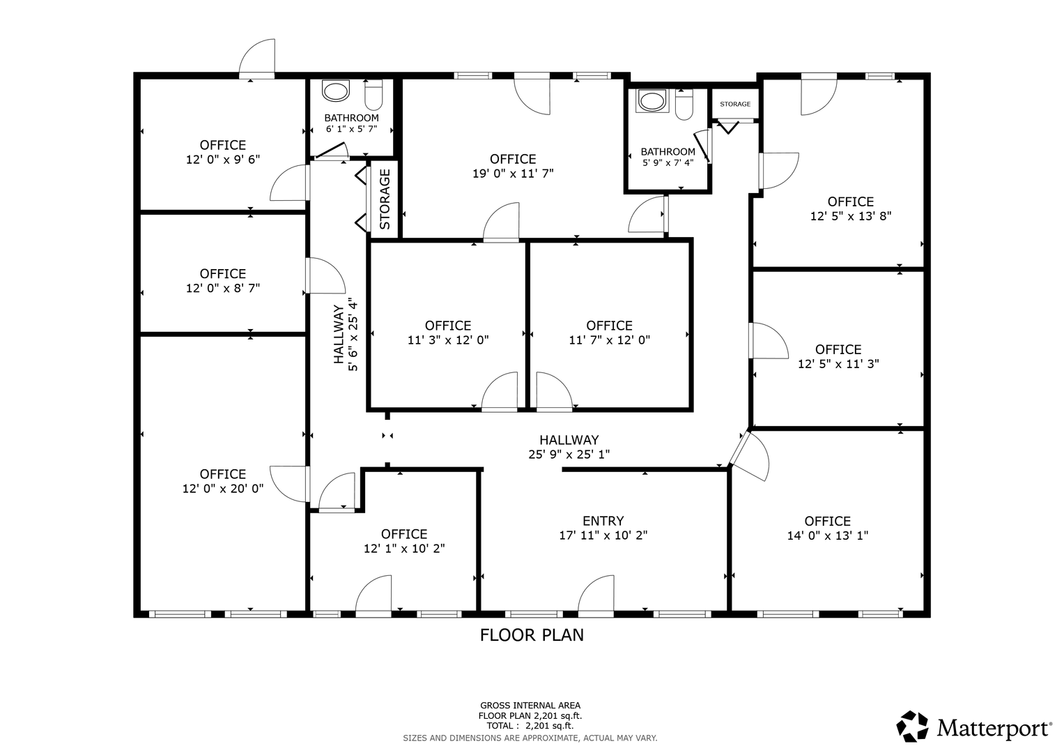
Premier Ground-Floor Professional Office Space for Lease: 4604 Atlantic Blvd, Jacksonville, FL 32207
Secure a prominent and accessible location for your practice with this exceptional downstairs commercial suite, created by combining two individual units into one cohesive space. Located on a high-traffic section of Atlantic Blvd, this ground-floor unit provides unparalleled visibility and easy access for both clients and staff.
This sizable suite offers a flexible layout, perfect for a professional services business. The expansive floor plan can be customized to your specific needs, whether you require multiple private offices for a law firm, a series of examination rooms for a medical practice, or a welcoming and spacious reception area for clients.
The ease of a ground-floor entrance is a significant advantage, ensuring that your business is easily accessible to all clients, including those with mobility challenges. The prominent location on Atlantic Blvd also provides an opportunity for excellent exterior signage, maximizing your brand's exposure to thousands of commuters daily.
This is a rare opportunity to lease a well-located, professionally-appointed, and highly accessible unit in a thriving commercial corridor. Ideal for a law firm, medical office, financial advisory group, or any professional service seeking a distinguished and client-friendly address.
 This sizable suite offers a flexible layout, perfect for a professional services business. The expansive floor plan can be customized to your specific needs, whether you require multiple private offices for a law firm, a series of examination rooms for a medical practice, or a welcoming and spacious reception area for clients.
The ease of a ground-floor entrance is a significant advantage, ensuring that your business is easily accessible to all clients, including those with mobility challenges. The prominent location on Atlantic Blvd also provides an opportunity for excellent exterior signage, maximizing your brand's exposure to thousands of commuters daily.
This is a rare opportunity to lease a well-located, professionally-appointed, and highly accessible unit in a thriving commercial corridor. Ideal for a law firm, medical office, financial advisory group, or any professional service seeking a distinguished and client-friendly address.
Contact us:
 














